高槻市唐崎中戸建 [No.12783] NEWおすすめ

| 物件名 | 高槻市唐崎中戸建 |
|---|---|
| 物件種別 | 中古戸建 |
| 価格 | 2,980万円 |
| 沿線/最寄駅 | 阪急京都本線/茨城市 |
| 交通 | 京阪バス24分乗車「唐崎」バス停下車徒歩3分 |
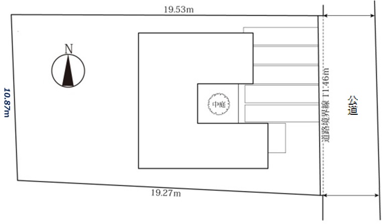
| 所在地 | 高槻市唐崎中三丁目 |
| 土地面積㎡(坪数) | 217.71㎡(65.85坪)私道2.76㎡含む |
| 土地権利 | 所有権 |
| 建物面積 | 110.97㎡ (33.56坪) |
| 構造・工法 | 木造合金メッキ鋼板スレート葺2階建 |
| 間取 | 4LDK+W |
| 都市計画/用途地域 | 市街化調整区域 |
| 建ぺい率/容積率 | 60%/200%(160%) |
| 私道負担・道路 | 東側4m弱公道に約11m接道 |
| 完成時期(築年数) | 平成20年7月 |
| 現況 | 居住中 |
| 引き渡し(時期/方法) | 相談 |
| 取引態様 | 専任媒介 |
| こだわりアイコン | |
| 更新日時 |
登録:2026年04月23日 04時00分 更新:2026年04月23日 04時03分 |



